Multilocale in vendita

Gavi, Via Goffredo Mameli
€ 95.000
9 locali 9 locali
197 Mq 197 Mq
2 bagni 2 bagni

Multilocale in vendita

Gavi, Via Goffredo Mameli

Descrizione annuncio

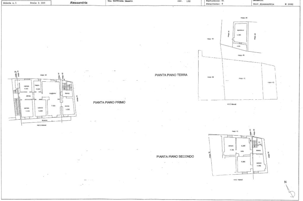
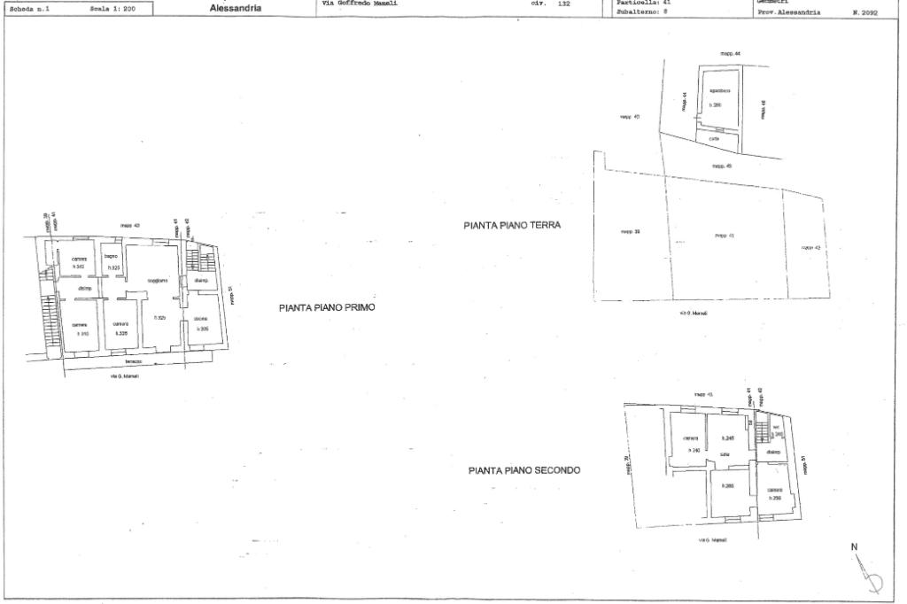
Nel cuore del comune di Gavi, proponiamo in vendita un affascinante immobile multilocale di 197 mq circa, distribuito su più livelli. Costruito nel 1900 e ristrutturato nel 1970, l'edificio conserva il fascino del passato con pavimenti in cotto e cementine originali. La proprietà è caratterizzata da ambienti luminosi e soleggiati, ideali per chi cerca un'atmosfera calda e accogliente. La parte abitativa gode di numerose stanze e spazi suddivisibili anche in due appartamenti distinti con locali accessori. Al piano terra, un negozio offre la possibilità di sviluppare un'attività commerciale o di essere trasformato in uno spazio abitativo aggiuntivo. Il soggiorno, arricchito da un camino, rappresenta il cuore della casa, perfetto per momenti di relax. Completano la proprietà una cantina, ideale per la conservazione di vini e prodotti locali, e uno spazio verde sul retro distribuito a terrazze con una vista meravigliosa sui tetti delle case del centro storico. Angolo verde che offre tranquillità e natura in pieno centro. Un'opportunità unica per chi desidera vivere in un contesto storico con tutte le comodità moderne. Tutta la proprietà può essere suddivisa in più appartamenti ed essere venduti separatamente a prezzi più vantaggiosi. Se vuoi saperne di più contattaci e ti mostreremo la varie soluzioni.

Mostra tutto

Nelle vicinanze

Ricariche auto elettriche Ricariche auto elettriche
Centro Sportivo di Gavi | EnelX
620 m
Parcheggio del Cimitero di Gavi | EnelX
1,1 Km
Gavi Cheirasca | EnelX
1,9 Km
Scuole Scuole
Scuola Media
470 m
Farmacia Farmacia
Farmacia
290 m
Supermercati Supermercati
Supermercati
590 m
Gulliver
1,9 Km
Negozi Negozi
supermercato
1,9 Km
Bar Bar
Sambar
380 m
Bar
480 m
Ristoranti Ristoranti
Ristoranti
120 m
Mostra tutto

Caratteristiche

Rif.:
61186427
Piano:
3 di 3 (Piano su più livelli)
Box:
1
Posti auto:
1
Balconi:
1
Terrazzi:
1
Mostra tutto
Prezzo Prezzo
€ 95.000
Rata mutuo Rata mutuo
€ 451 / mese
Spese annue Spese annue
€ 0
Proponi il tuo prezzoProponi il tuo prezzo
Immobile valutato con T·Valuta

Classe Energetica

G
G
G
G
G
G
G
G
G
EP globale non rinnovabile:
357.00 kW h/m² anno
EP invernale del fabbricato:
EP estiva del fabbricato:
Anno di costruzione:
1900
Riscaldamento:
Autonomo
Tipo impianto:
A radiatori
Tipo alimentazione:
Metano

Ti interessa visionare l'immobile?

Fissa un appuntamento  Fissa un appuntamento

Richiedi informazioni

Clicca su Leggi per aprire l'informativa
* Questi campi sono obbligatori

Calcola il tuo mutuo

Semplice e senza impegno
Anticipo

( % )
Mutuo

( % )

pochi semplici passi

inserisci i tuoi dati
Questionario completato
Grazie per aver richiesto un appuntamento senza impegno con un nostro Consulente del Credito e Assicurativo.

Hai inserito correttamente tutti i dati necessari e a breve riceverai una e-mail con un link da convalidare per inviare i tuoi dati.
Affiliato
Studio Gavi D.I.
Via Goffredo Mameli , 7/R 15066 Gavi (AL)

Il nostro staff


  • Fabio Ghiglione
    Affiliato

  • Sara Filippini
    Coordinatrice

  • Valentina Emanuela Arecco
    Coordinatrice
Via Goffredo Mameli , 7/R 15066 Gavi (AL)
Zona: Gavi e Comuni Limitrofi
Mostra su mappa
Orari: Lunedì 9.00/12.30; Martedì - Venerdì 9.00/12.30 - 15.00/19.30; Sabato 9.00/12.30 - 15.00/17.00 ; domenica chiuso
Affiliato
Studio Gavi D.I.
Via Goffredo Mameli , 7/R 15066 Gavi (AL)

2026 Tecnocasa Franchising S.p.A. - P. IVA 08365160152 - Via Monte Bianco 60/A 20089 Rozzano (MI). Ogni agenzia ha un proprio titolare ed è autonoma. Privacy policy | Policy utilizzo | Cookie policy